...
...



Detailed specifications include all materials and work included in the construction cost.
Frame technology is one of the fastest and most economical ways to build a country house.
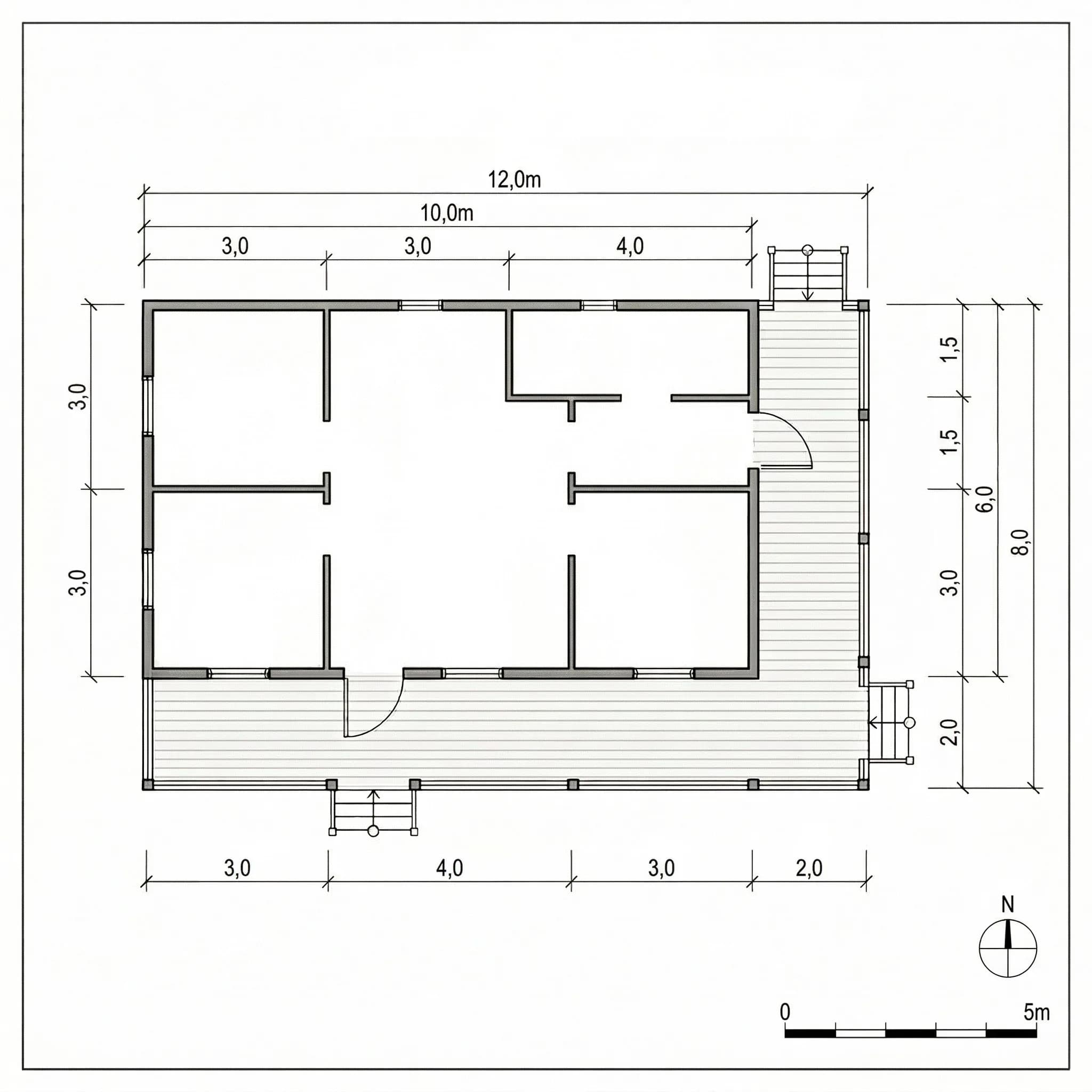
96 m2 house in 3-4 months.
ROCKWOOL insulation up to 250 mm. Heats in 2-3 hours.
Up to 30% savings vs brick. Light pile foundation.
No load-bearing interior walls.
Single-story -- no stairs, convenient for all ages.
VEKA windows, ROCKWOOL insulation, GRANDLINE roofing.
Leave a request — we'll contact you, clarify details and offer the best solution for your plot and budget.
Response within 30 minutes
+7 (921) 767-67-61
info.stroyinvest24@gmail.com
We'll call back and consult for free